置顶 房屋租赁 | 大巴黎 94省 Cachan
来自浙江嘉兴 刷新时间 2026-04-20 10:05:24
400欧/月
扫码打电话
安全小贴士:以各种理由收取费用(押金、服装费、报名费、充值卡等)均有诈骗嫌疑,请提高警惕。
详细描述
租金: 400欧/月
城市: 大巴黎 94省 Cachan
面积: 12平米
户型: Studio
押金方式: 押一付一
朝向: 南
来源: 个人房东
能源等级: A
房间设施: 含家具,包含水费,包含电费,包含网络
有意者请微信联系,即刻可以入住
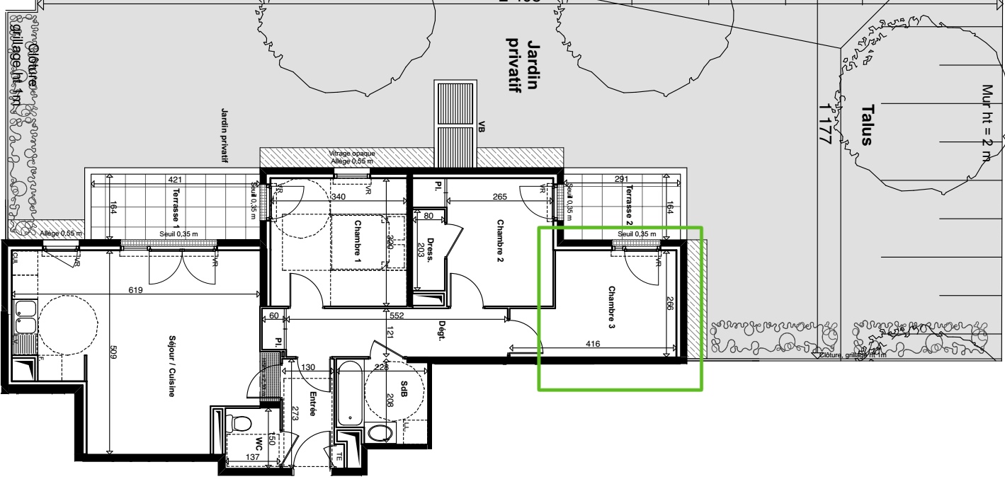
房东直租,B线Arcueil Cachan站,2017年建的公寓楼,RDC,三室一厅,有一个车位可以免费使用。共享25平米客厅,卫生间和200平米花园。
现出租其中一间卧室(图内绿色框chambre3)
费用:含Charge总共450欧(包含Charge杂费50欧),可申请房补。水电网络暖气全包,Orange光纤到户。
每两月一次阿姨打扫房间公共区域。
租客在花园除草一次可免除50元房租。
交通:距离RER B线Arcueil-Cachan站步行10分钟,也有公交187直达Porte d'Orléans,184直达13区中国城 。
地理位置和周边:房屋位于Rue Camille Desmoulins, 周边环境平静安全,楼盘配套进门密码。邻近市中心花园。距离大学城5分钟步行,靠近ENS Cachan,ESTP和IUT。
生活配套设施齐全,附近有Auchan和两个Carrefour Market,餐馆,邮局,银行,家庭医生。
附属94省Hay les Roses sous préfecture, 因为辖区内城市较少,办理sejour速度快捷。
联系我时,请说是在新欧洲·跳蚤上看到的,谢谢
房东直租,B线Arcueil Cachan站,2017年建的公寓楼,RDC,三室一厅,有一个车位可以免费使用。共享25平米客厅,卫生间和200平米花园。
现出租其中一间卧室(图内绿色框chambre3)
费用:含Charge总共450欧(包含Charge杂费50欧),可申请房补。水电网络暖气全包,Orange光纤到户。
每两月一次阿姨打扫房间公共区域。
租客在花园除草一次可免除50元房租。
交通:距离RER B线Arcueil-Cachan站步行10分钟,也有公交187直达Porte d'Orléans,184直达13区中国城 。
地理位置和周边:房屋位于Rue Camille Desmoulins, 周边环境平静安全,楼盘配套进门密码。邻近市中心花园。距离大学城5分钟步行,靠近ENS Cachan,ESTP和IUT。
生活配套设施齐全,附近有Auchan和两个Carrefour Market,餐馆,邮局,银行,家庭医生。
附属94省Hay les Roses sous préfecture, 因为辖区内城市较少,办理sejour速度快捷。
联系我时,请说是在新欧洲·跳蚤上看到的,谢谢
联系人
钱先生
联系我时,请说是在新欧洲·跳蚤上看到的,谢谢
立即联系



